Aroniowa
Wyjątkowo nowoczesny i funkcjonalny dom jednorodzinny dwulokalowy, zlokalizowany na działce o powierzchni 1011 m2, w doskonałej lokalizacji przy ulicy Aroniowej na Warszawskiej Białołęce.
Indywidualny projekt domu został stworzony przez znanego i cenionego architekta, specjalizującego się w domach najwyższych standardów.
Architektura domu to połączenie nowoczesności, funkcjonalności oraz komfortu użytkowania, z uwzględnieniem położenia działki i jego otoczenia.
Dom oraz teren wokół niego został zaprojektowany w taki sposób, aby każda połowa budynku stanowiła osobną prywatną strefę. Również konstrukcja budynku zapewnia intymność każdego z lokali.
Budynek wykonany w technologii o wysokich parametrach cieplnych, gwarantujących niskie koszty ogrzewania.
Przed domem duży, przestronny podjazd.
Priorytetem dla Nas jest wysoka jakość wykonania z zastosowaniem wysokiej jakości materiałów.
Dla każdego z budynków został opracowany, przez cenione biuro architektoniczne, kompleksowy projekt wykończenia wnętrz.
Zawiera on m.in.:
– wizualizacje wnętrz
– rzut umeblowania
– rzut montażu
– rzut funkcjonalno-przestrzenny
– projekt instalacji hydraulicznej
– projekt instalacji elektrycznej
– projekt oświetlenia
– rzut sufitów
– rzut posadzki
– rozwinięcie wszystkich ścian
– zestawienia
– projekt mebli
Wszystkie instalacje w budynku zostaną wykonane zgodnie z projektem aranżacji wnętrz.
Budynki posiadają lustrzane odbicie, w związku z tym aranżacje można stosować zamiennie.
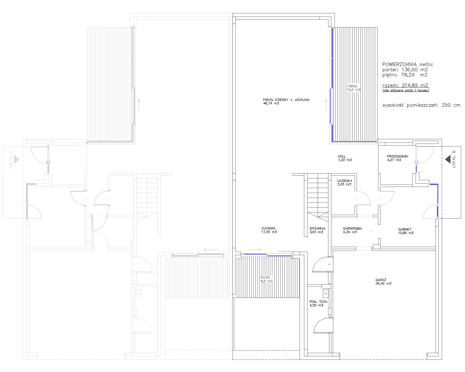
Budynek A
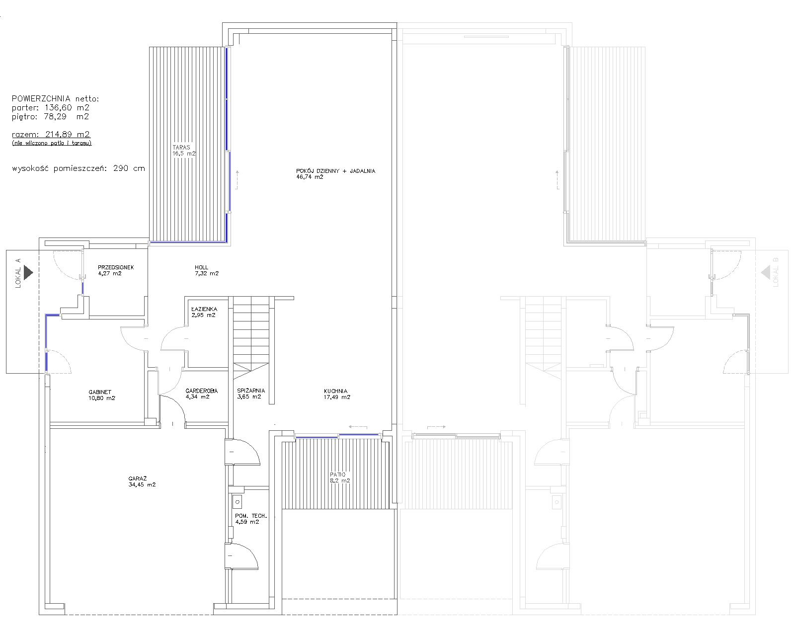
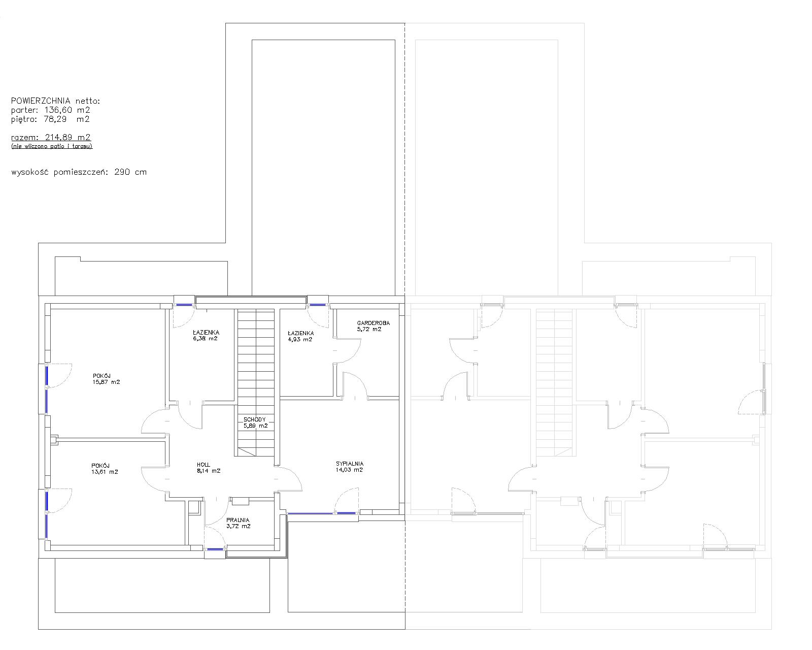
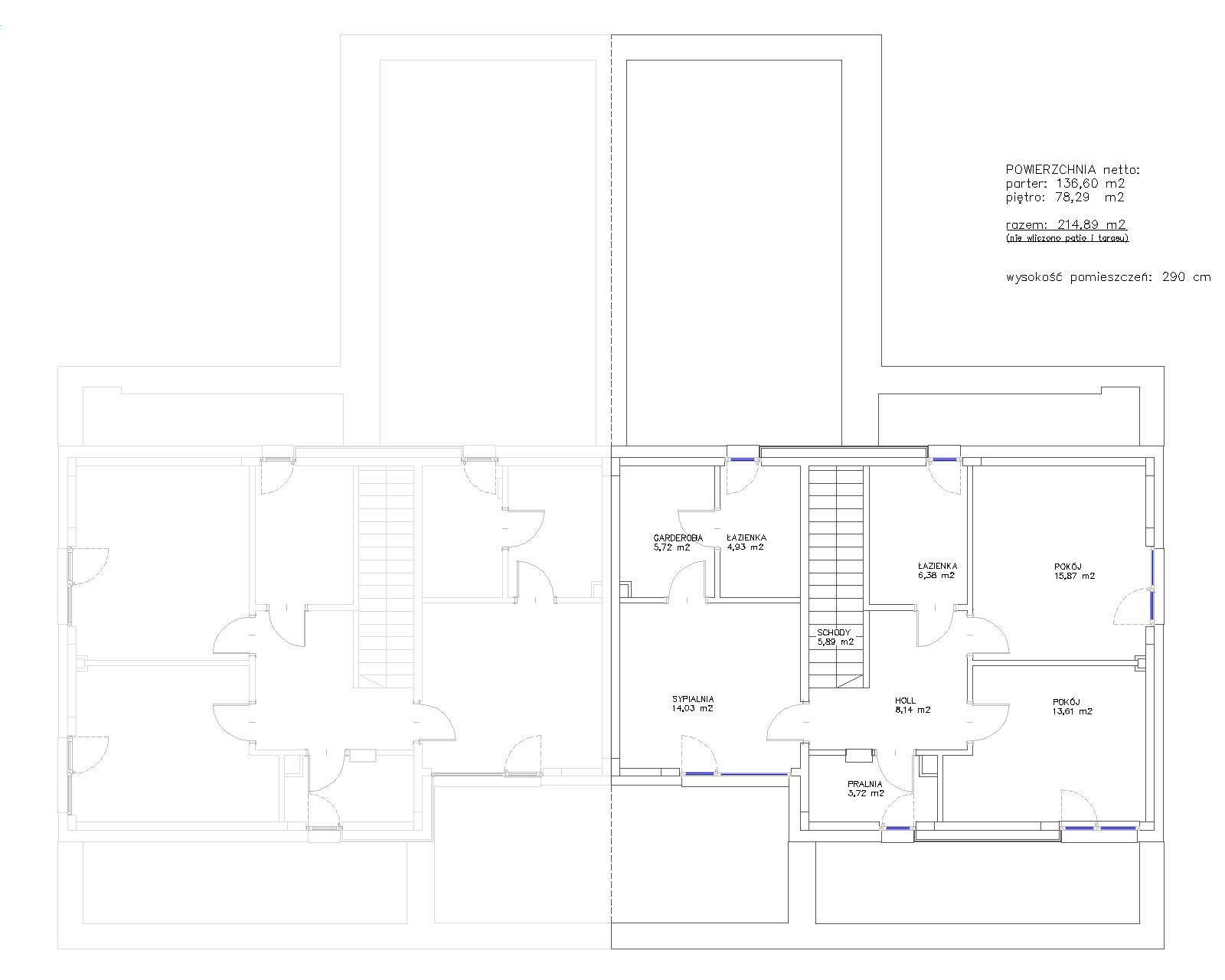
- powierzchnia netto: 215 m2
- powierzchnia działki: 478 m2
wysokość pomieszczeń 290 cm
Budynek B
- powierzchnia netto: 215 m2
- powierzchnia działki: 533 m2
wysokość pomieszczeń 290 cm
CO NAS WYRÓŻNIA?
- indywidualny projekt stworzony przez cenionego architekta
- indywidualny projekt wykończenia wnętrz
- duża powierzchnia działki
- konstrukcja budynku i technologia wykonania
- stolarka aluminiowa
- duże przeszklenia
- ogrzewanie budynku
- instalacje
- elewacja budynku
- wykończenie zewnętrze
- wysoka jakość wykonania
- poszczególne etapy wykonują sprawdzeni i cenieni fachowcy w swoich branżach
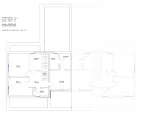
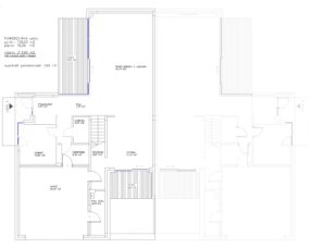
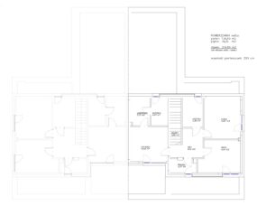
Rzuty
Fundamenty
– ławy i stopy fundamentowe wylewane
– ściany fundamentowe z bloczków betonowych
– rdzenie i wieńce żelbetowe
– pionowa i pozioma izolacja przeciwwilgociowa
– ocieplone płytami polistyren ekstrudowany 15cm
– posadzka na parterze izolowana papą z wkładką aluminiową
– posadzka na parterze ocieplona pianobeton oraz płytami styropianowymi z wkładką aluminiową (łączna grubość izolacji 20cm)
Ściany
– ściany nośne SILKA
– ściany wewnętrzne SILKA
– ściany wzmocnione trzpieniami żelbetowymi (bardzo duża ilość wzmocnień)
– schody wewnętrzne żelbetowe o szerokości 120cm
Stropy
– żelbetowy monolityczny
– podwójne zbrojenie
Dach
– papa paroizolacyjna z wkładką aluminiową
– izolacja termiczna dachu płyty styropianowe
– papa podkładowa BAUDER
– papa wierzchniego krycia BAUDER
– maszt antenowy ze stali nierdzewnej
– wpusty dachowe SITA ogrzewane
Elewacja
– ocieplenie ścian z zewnątrz styropian grafitowy Termo Organika TERMONIUM PLUS 20cm
– tynk zewnętrzny cienkowarstwowy silikonowo-elastomerowy CERESIT
– parapety zewnętrzne aluminiowe malowane proszkowo
Okna, drzwi
– bardzo duże przeszklenia
– stolarka okienna aluminiowa REYNAERS MaserLine 8 pakiet trzyszybowy Ug=0,5 [m2K/W], ciepła ramka
– drzwi wejściowe aluminiowe REYNAERS
– pokój dzienny oraz kuchnia okno przesuwne
– okna o wysokości 275 cm (wysokość pomieszczeń 290cm)
– na piętrze w oknach balustrady szklane oraz częściowo okucia TBT z klamką z kluczykiem
– brama garażowa ocieplona HÖRMANN z automatyką
Wykończenie wewnętrzne
– tynki wewnętrzne gipsowe nakładane maszynowo
– posadzki w pomieszczeniach mieszkalnych anhydrytowe
– posadzki w garażu oraz kotłowni cementowe
– ściany i sufity zagruntowane
– gres na podłodze w kotłowni oraz garażu
– dodatkowo ocieplone ściany wewnątrz garażu
Instalacje
– rozbudowana instalacja elektryczna
– rozbudowana instalacja RTV
– instalacja wifi
– instalacja alarmowa
– czujniki: dymu, dwutlenku węgla, gazu
– kontaktrony we wszystkich oknach, drzwiach wejściowych
– instalacja wideodomofon (parter + piętro)
– osprzęt elektryczny Berker
– przygotowanie pod montaż stacji do ładownia samochodów elektrycznych
– przygotowanie instalacji do kamer monitorujących teren całej posesji
Ogrzewanie-rekuperacja
– instalacja centralnego ogrzewania kocioł kondensacyjny weishaupt WTC (modulacja mocy od 1,9 do 15 kW)
– zasobnik c.w.u. 150 l
– wszystkie pomieszczenia mieszkalne (parter + piętro) ogrzewanie podłogowe
– w pomieszczeniach osobne sterowanie temperaturą
– w garażu oraz pomieszczeniu technicznym również ogrzewanie podłogowe (rozwiązanie stosowane tylko w domach najwyższych standardów)
– w łazienkach dodatkowo przygotowana instalacja pod montaż grzejników
– wentylacja mechaniczna z rekuperacją Domekt Rego
– możliwość sterowania ogrzewaniem/rekuperacją dodatkowo przez internet
Wykończenie zewnętrzne
– wejście do budynku, podjazd: płyty Polbruk
– opaski wokół budynku: płyty Polbruk
– patio: drewno lub płyty (opcja)
– taras: drewno lub płyty (opcja)
– przygotowanie instalacji pod montaż jacuzzi na tarasie
– przygotowanie instalacji pod system nawadniania ogrodu
– przygotowanie instalacji oświetlenia zewnętrznego
– ogrodzenie boczne panele stalowe ocynkowane, malowane proszkowo
– ogrodzenie frontowe stalowe ocynkowane, malowane proszkowo, zabudowa śmietnika pustaki dekoracyjne (indywidualny projekt ogrodzenia)
– brama zewnętrzna otwierana automatycznie FAAC
– zadaszenie śmietnika
– instalacja do kosiarki automatycznej
– instalacja rozprowadzenia wody deszczowej
Media
– energia elektryczna z sieci
– gaz miejski z sieci
– woda z wodociągu miejskiego
– kanalizacja szczelny zbiornik z wyprowadzeniem rury ssawnej na zewnątrz posesji
(kanalizacja miejska w trakcie realizacji, została opracowana i uzgodniona dokumentacja z MPWiK)
Lokalizacja
– droga asfaltowa
– oświetlona ulica
– komunikacja miejska
– otoczenie domy jednorodzinne
– pełna infrastruktura w bliskiej odległości szkoły, przedszkola, sklepy, banki, apteki, itd.
